Főoldal
Kiadó lakások
Kiadó teremgarázsok, parkolók, tárolók
Cégünkről
Cégbemutató
Partnereink
Építkezés
Tervezés
Kivitelezés
Építési helyszínek
Eladó ingatlanok Érd
Kapcsolat
Kiemelt információk
Egyedileg választható szaniterek, hideg meleg burkolatok rövid határidővel.
Elérhetőség: eusaniter@gmail.com
Látogatók száma:
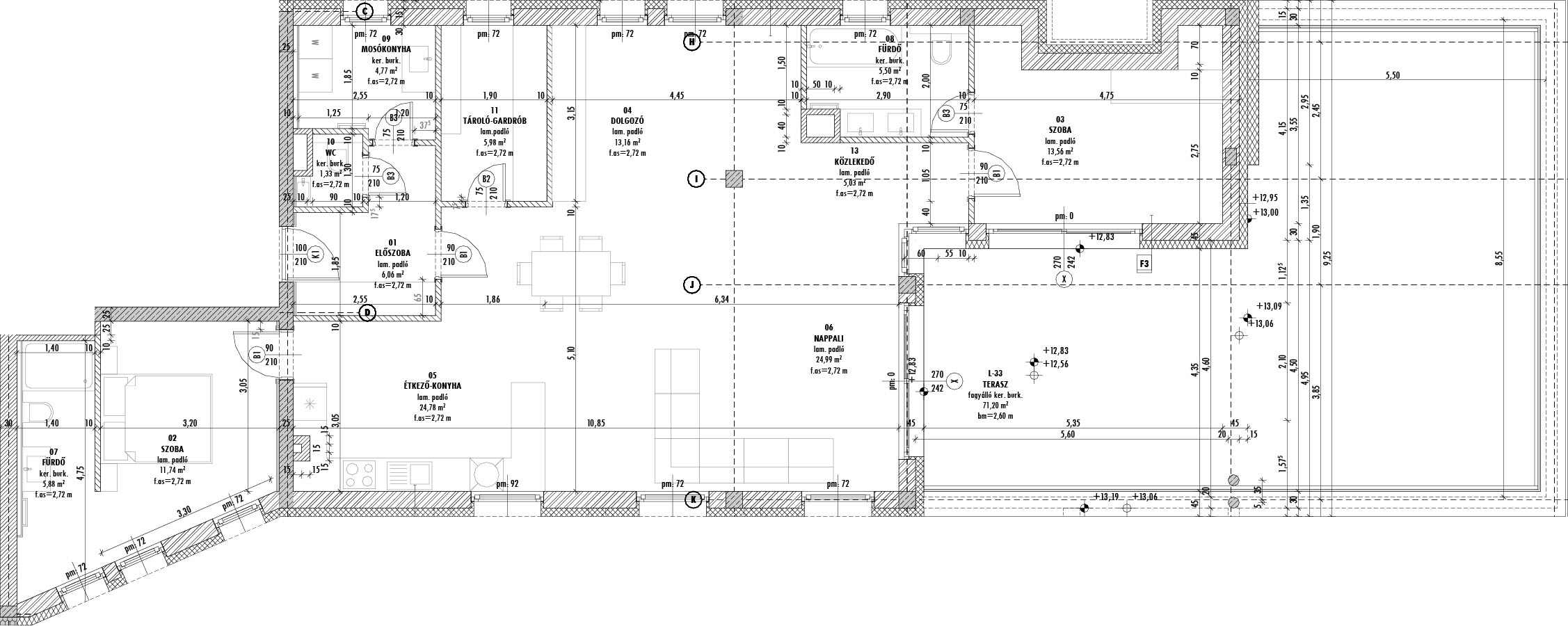
Emelet
4
Szoba
4
Alapterület
119.9m
2
Terasz
70.32m
2
Lakás szám
L33
Alaprajz letöltése
Helység
Alapterület
Előszoba
6.06m
2
Szoba
11.74m
2
Szoba
12.24m
2
Szoba
13.72m
2
Konyha-Étkező
18.10m
2
Nappali
24.99m
2
Fürdő
5.88m
2
Fürdő
5.50m
2
Mosókonyha
4.77m
2
WC
1.33m
2
Tároló-Gardrób
5.98m
2
Tároló-Gardrób
6.31m
2
Közlekedő
3.28m
2
Terasz
71.20m
2
A lakás elhelyezkedése: