Főoldal
Kiadó lakások
Kiadó teremgarázsok, parkolók, tárolók
Cégünkről
Cégbemutató
Partnereink
Építkezés
Tervezés
Kivitelezés
Építési helyszínek
Eladó ingatlanok Érd
Kapcsolat
Kiemelt információk
Egyedileg választható szaniterek, hideg meleg burkolatok rövid határidővel.
Elérhetőség: eusaniter@gmail.com
Látogatók száma:
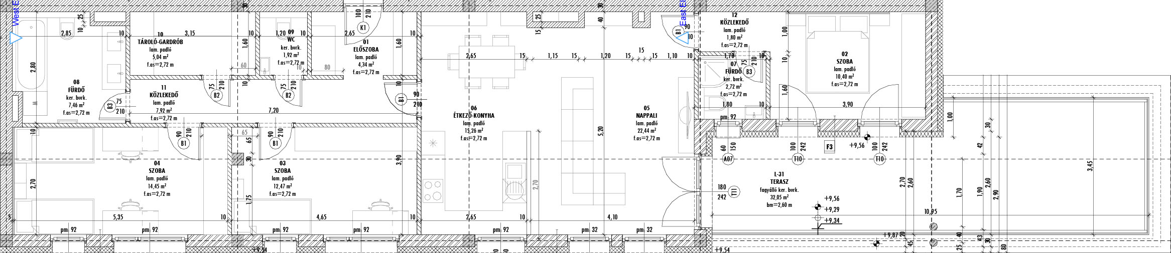
Emelet
3
Szoba
4
Alapterület
106.22m
2
Terasz
33.41m
2
Lakás szám
L31
Alaprajz letöltése
Lakás ára:
149.40 Millió Ft
A lakás ára a terasz árát is tartalmazza.
Helység
Alapterület
Előszoba
4.34m
2
Szoba
10.40m
2
Szoba
12.47m
2
Szoba
14.45m
2
Nappali
22.44m
2
Konyha-Étkező
15.26m
2
Fürdő
2.72m
2
Fürdő
7.46m
2
WC
1.92m
2
Tároló-Gardrób
5.04m
2
Közlekedő
7.92m
2
Közlekedő
1.80m
2
Terasz
32.05m
2
A lakás elhelyezkedése: